Propiedades

Descripción
Metros:

40.00 mt²

Dormitorios:

1 dormitorios

Baños:

1 baños

Ambientes:

2 ambientes

Piso:

Piso nº 3

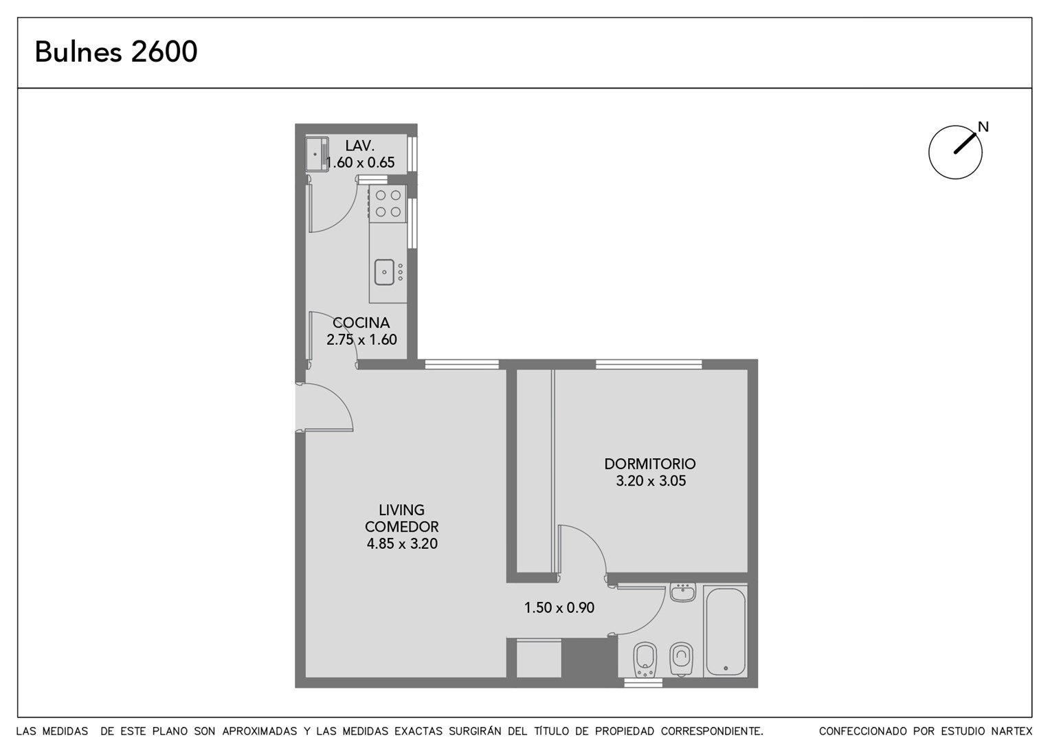
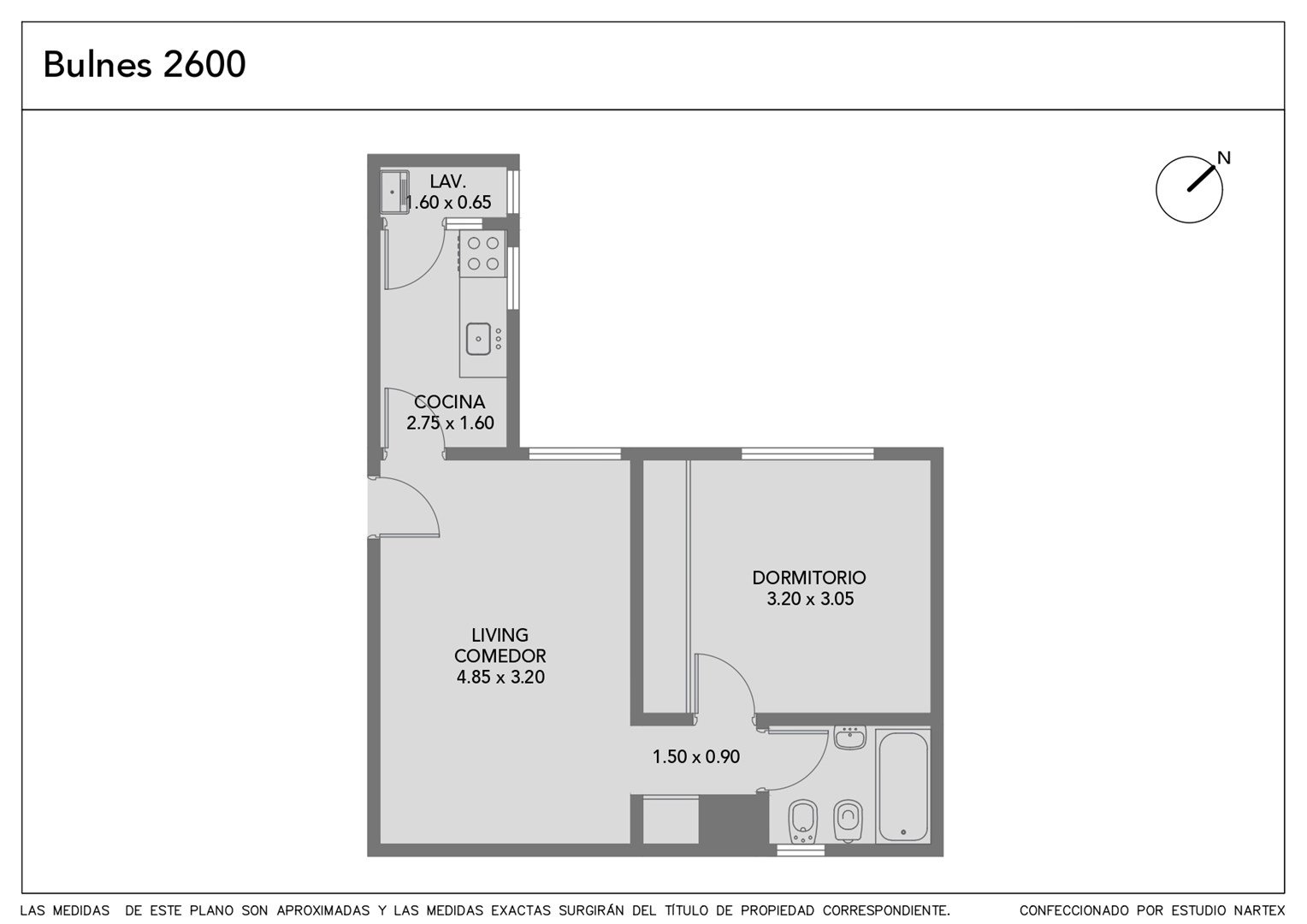
El hall de entrada al edificio cuenta con un mural del artista argentino Rodolfo Bardi (1927-2001) con su técnica de “relieve escultórico” de los que sólo quedan algo menos de doscientos cincuenta edificios con su obra entre 1960 y 1983. El departamento de dos ambientes es interno y se encuentra en el tercer piso al contrafrente, forma parte de los diez pisos y veinte unidades funcionales con los que cuenta el edificio, estratégicamente ubicado a ciento cincuenta metros de Av. del Libertador y del Parque Las Heras. Al ingresar a la unidad nos encontramos con un living comedor de 4,85m x 3,20m. A la izquierda del ingreso tenemos la cocina y el lavadero independiente (de época), con agua caliente por calefón individual (nuevo mayo 2023). Luego encontramos un pequeño hall de distribución de 1,50m x 0,9m que nos lleva al dormitorio principal y al baño completo (de época). Todos los ambientes cuentan con ventanas al exterior y se realizó toda la instalación eléctrica nueva a la unidad en mayo del año pasado. El piso del dormitorio y del living comedor es de parquet en excelente estado y el dormitorio cuenta además con amplio espacio de guardado y aire acondicionado. La calefacción es central por radiadores. Sup Cubierta por escritura : 39,42 m2 La publicación cuenta con video recorrido a pie, tour virtual 360° y plano digital. - - - - Toda la información del aviso, incluyendo medidas, precio, impuestos, servicios, etc. son estimativos, sujetos a modificación y no vinculantes, según lo dispuesto en el art. 973, Cód. Civ. y Com. Toda la información del aviso, incluyendo medidas, precio, impuestos, servicios, etc. son estimativos, sujetos a modificación y no vinculantes, según lo dispuesto en el art. 973, Cód. Civ. y Com.

Todos los detalles
Ubicación

Dirección: Bulnes 2625

Zona: Palermo Chico

Provincia/Estado: Capital Federal, Argentina

Código postal:

Recorrido 360
Video
La propiedad indicada se encuentra Vendida
Departamentos en venta

Departamento en Venta en Palermo Chico, Capital Federal, Buenos Aires

Bulnes 2625 - Palermo Chico - Palermo Chico, Capital Federal, Capital Federal 14 visitas al momento
USD 80.000 En venta VENDIDA

  • Ambientes: 2
  • Dormitorios: 1
  • Baños: 1
  • Estacionamientos: -
  • Superficie: 40.00mt²
  • Cubierto: 40mt²
Descripción

El hall de entrada al edificio cuenta con un mural del artista argentino Rodolfo Bardi (1927-2001) con su técnica de “relieve escultórico” de los que sólo quedan algo menos de doscientos cincuenta edificios con su obra entre 1960 y 1983. El departamento de dos ambientes es interno y se encuentra en el tercer piso al contrafrente, forma parte de los diez pisos y veinte unidades funcionales con los que cuenta el edificio, estratégicamente ubicado a ciento cincuenta metros de Av. del Libertador y del Parque Las Heras. Al ingresar a la unidad nos encontramos con un living comedor de 4,85m x 3,20m. A la izquierda del ingreso tenemos la cocina y el lavadero independiente (de época), con agua caliente por calefón individual (nuevo mayo 2023). Luego encontramos un pequeño hall de distribución de 1,50m x 0,9m que nos lleva al dormitorio principal y al baño completo (de época). Todos los ambientes cuentan con ventanas al exterior y se realizó toda la instalación eléctrica nueva a la unidad en mayo del año pasado. El piso del dormitorio y del living comedor es de parquet en excelente estado y el dormitorio cuenta además con amplio espacio de guardado y aire acondicionado. La calefacción es central por radiadores. Sup Cubierta por escritura : 39,42 m2 La publicación cuenta con video recorrido a pie, tour virtual 360° y plano digital. - - - - Toda la información del aviso, incluyendo medidas, precio, impuestos, servicios, etc. son estimativos, sujetos a modificación y no vinculantes, según lo dispuesto en el art. 973, Cód. Civ. y Com. Toda la información del aviso, incluyendo medidas, precio, impuestos, servicios, etc. son estimativos, sujetos a modificación y no vinculantes, según lo dispuesto en el art. 973, Cód. Civ. y Com.

Detalles
  • Código: KP433852
  • Categoría: Departamentos
  • Estado: Vendida
  • Venta: USD 80.000
  • Dirección: Bulnes 2625
  • Zona: Palermo Chico
  • Barrio: Palermo Chico
  • Ciudad: Capital Federal
  • Provincia: Capital Federal
  • País: Argentina
  • Ambientes: 2
  • Dormitorios: 1
  • Baños: 1
  • Piso: 3
  • Superficie total: 40.00
  • Superficie cubierta: 40
  • Año de construcción: 1975
  • Expensas: USD 62.000
Últimas Propiedades